Descrizione
Milano Marittima NUOVA COSTRUZIONE
Milano Marittima NUOVA costruzione
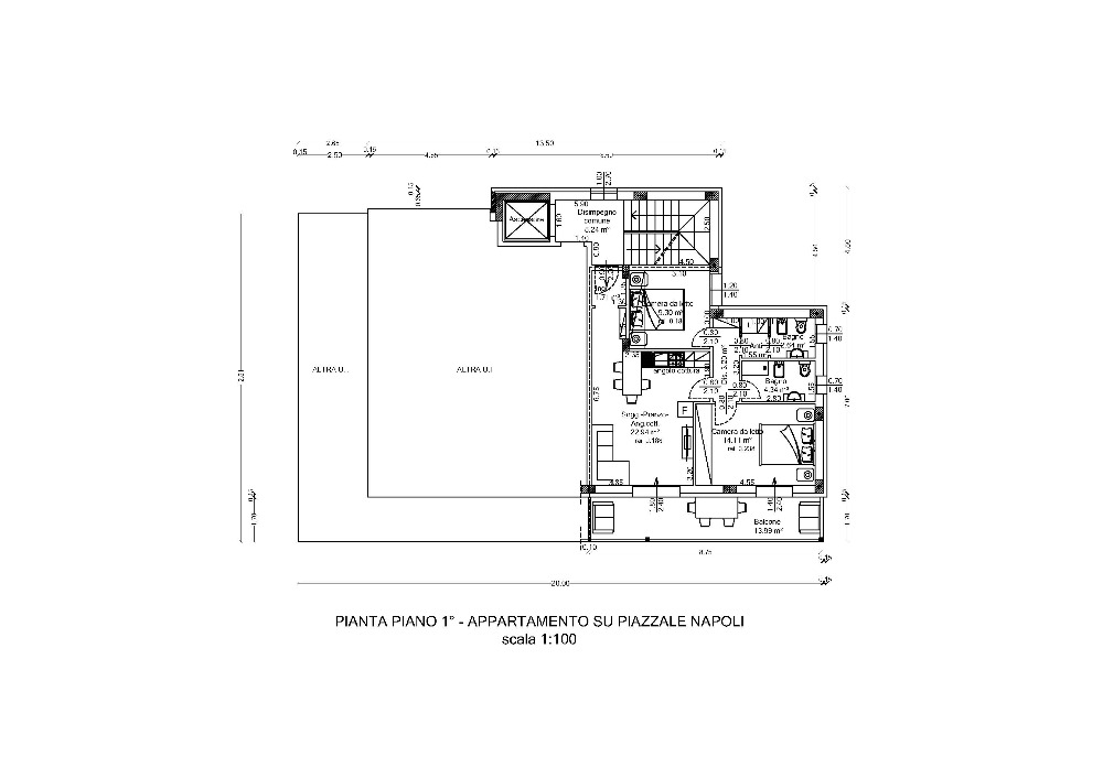
Milano Marittima Via III traversa appartamento da 650.000,00€ Situato in una posizione esclusiva, a pochi passi dal centro di Milano Marittima e dal mare, realizziamo in piccola palazzina 4 appartamenti con 2/3 camere e 2 bagni con ampie terrazze e un attico di 197 mq con grande terrazza di 109 mq . al piano terra 2 negozi qualificati , posti auto , cantine , posti bici . L'appartamento al primo piano sarà cosi composto: due camere da letto, due bagni salone con affaccio sul terrazzo e cucina living su salone. Le finiture sono di alto livello e personalizzabili : pavimenti in listone di rovere spazzolato , riscaldamento a pavimento con pompa di calore e pannelli fotovoltaici , infissi in pvc con tapparelle elettriche , domotica , sanitari sospesi .
Questa soluzione è ideale per chi cerca un’abitazione esclusiva da vivere in ogni stagione dell'anno, una casa vacanza o un investimento di prestigio in una delle località più rinomate della riviera romagnola.
Caratteristiche
Numero locali
5
Superficie
109 m²
Numero bagni
2
Piano
1
Posti Auto
1
Totale Piani Edificio
3
Disponibilità
Libero
Anno costruzione
2026
Stato
In costruzione
Riscaldamento
Autonomo
Climatizzatore
Si
Planimetrie
Posizione